РОСКОШНАЯ ВИЛЛА В АВСТРАЛИИ
- 12.05.2014
- 3449 просмотров
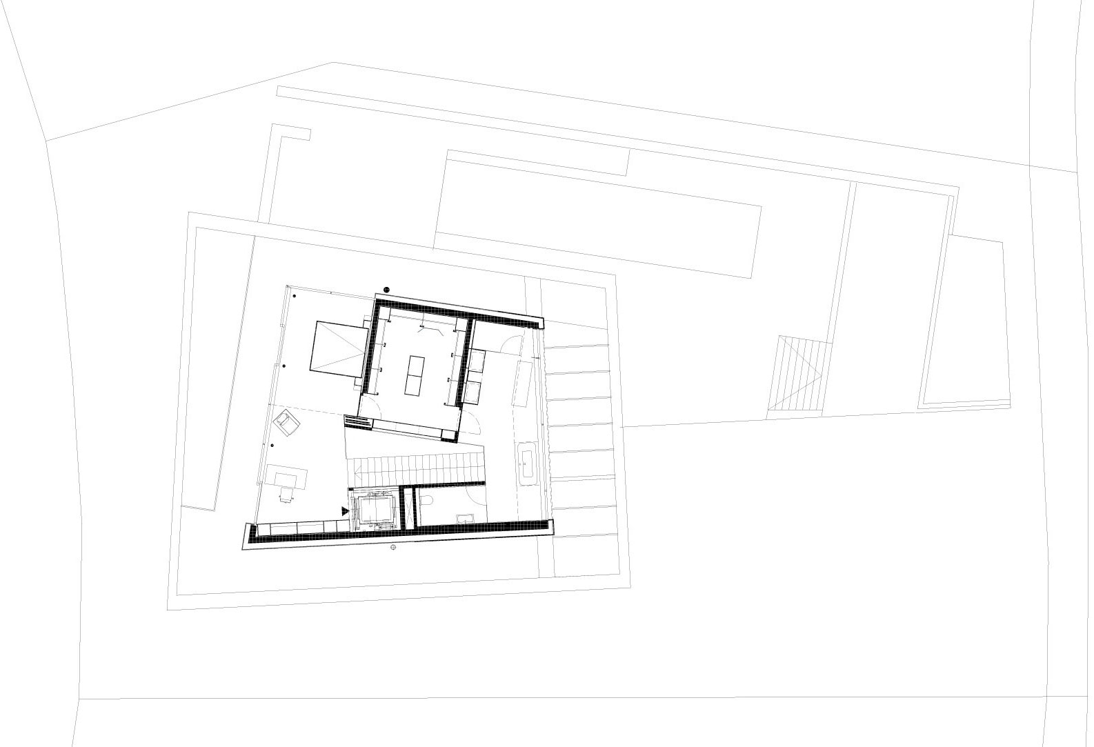
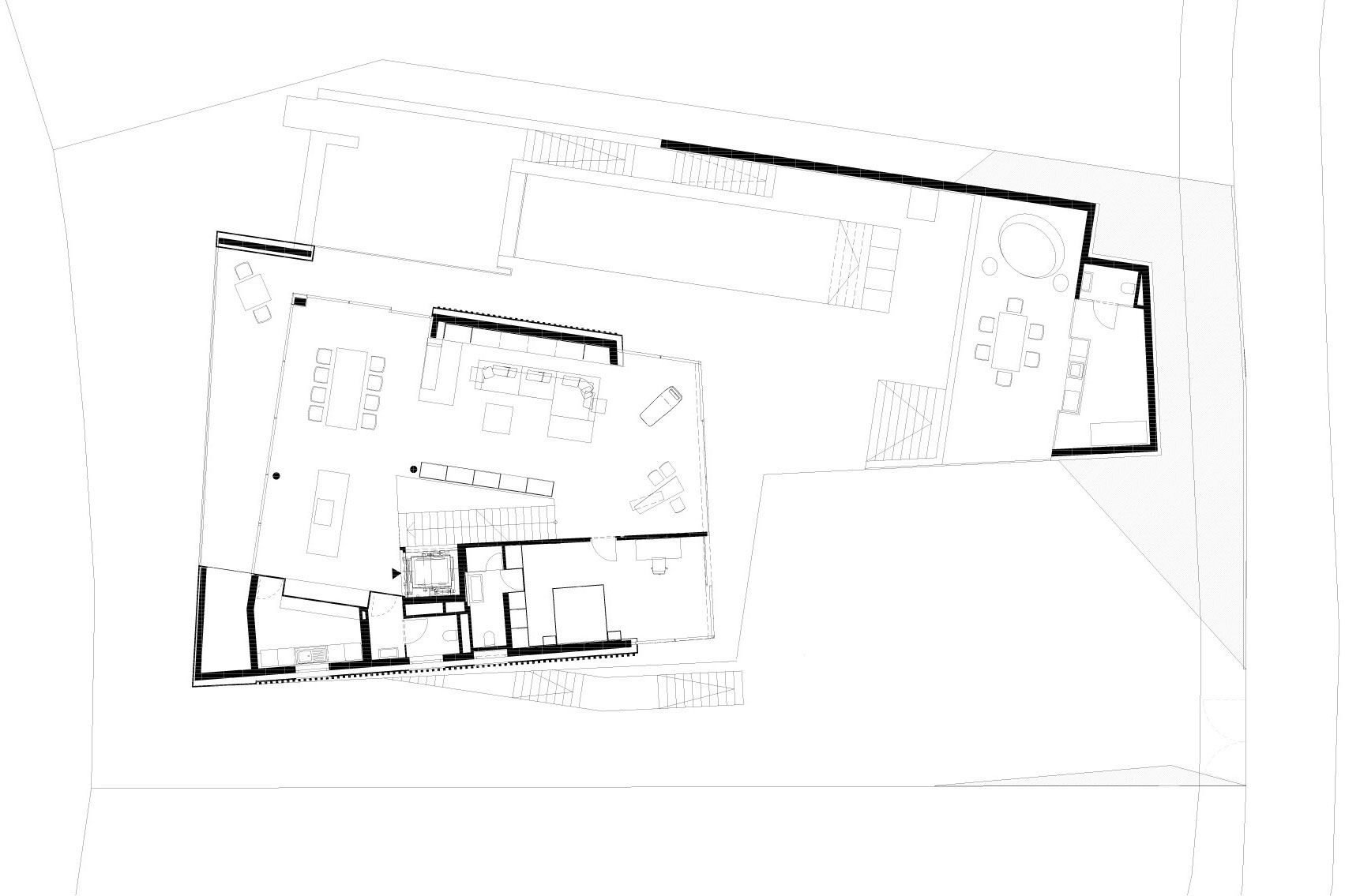
Эта 4-х этажная вилла находится в Австралии. В ней есть все роскоши современной жизни: начиная от изящных спален и заканчивая немалым бассейном и даже лифтом. Над созданием виллы поработала архитектурная фирма Two in a Box-Architekten. Учитывая наклон местности, строители изрядно потрудились над выравниванием плоскости для будущего дома. Благодаря своему размещению с верхних этажей открывается прекрасный вид на город и зеленые насаждения. Для дизайна интерьера использовали темный дуб, натуральный камень, стекло и кожу.
Рекомендуемые статьи для тебя:
GD-Home – это маленькое удовольствие, что-то уютное и теплое. Почему мы стараемся для вас? Мы просто верим, что домашний уют способен сделать людей счастливее.












Нам интересно ваше мнение