РОСКОШНЫЙ КЛАССИЧЕСКИЙ ДИЗАЙН ИЗ АВСТРАЛИИ
- 02.04.2015
- 4738 просмотров
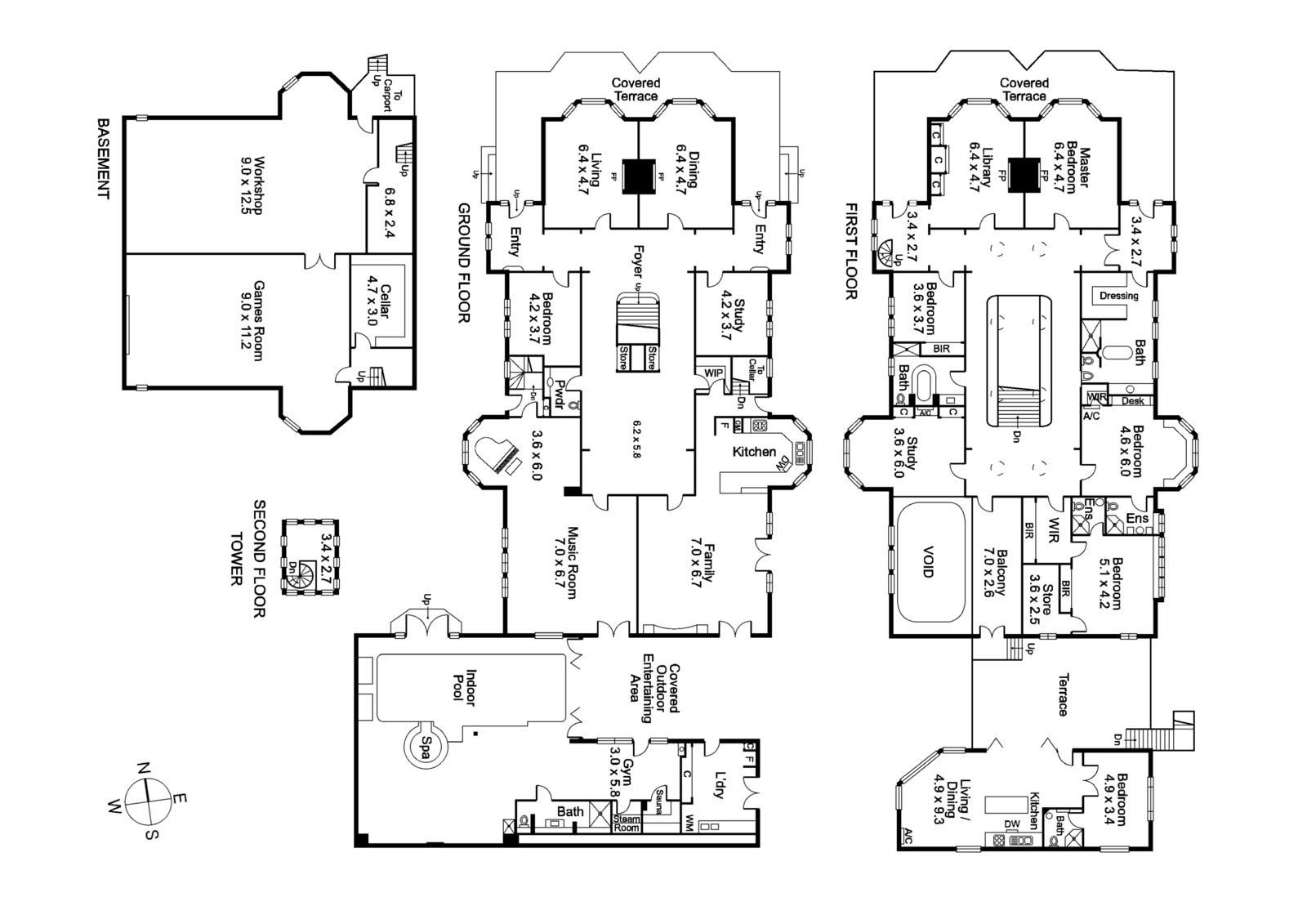
Этот дом был построен в викторианскую эпоху, в 1898 году. И по сей день, он производит эффектное впечатление, как и столетие назад. Его владельцу принадлежит 1 500 кв. м земли, на которой размещен сам дом, бассейн и джакузи, сад, тренажерный зал, конюшня, баня и сауна, небольшой пруд, а также парковка для четырех автомобилей. Кажется, такие возможности должны быть рассчитаны на огромную семью.
Внутренний интерьер выполнен в классическом стиле с использованием большого количества дерева. Особо роскошно выглядит деревянная лестница в холе под сводчатым потолком. В резиденции есть семь спален и столько же ванных комнат. Также найдется парочка гостиных, несколько балконов и башен, которые открывают панорамный вид на город.
Рекомендуемые статьи для тебя:
GD-Home – это маленькое удовольствие, что-то уютное и теплое. Почему мы стараемся для вас? Мы просто верим, что домашний уют способен сделать людей счастливее.















Нам интересно ваше мнение