Пример дизайн-проекта квартиры: что в него входит
- 27.07.2020
- 1999 просмотров

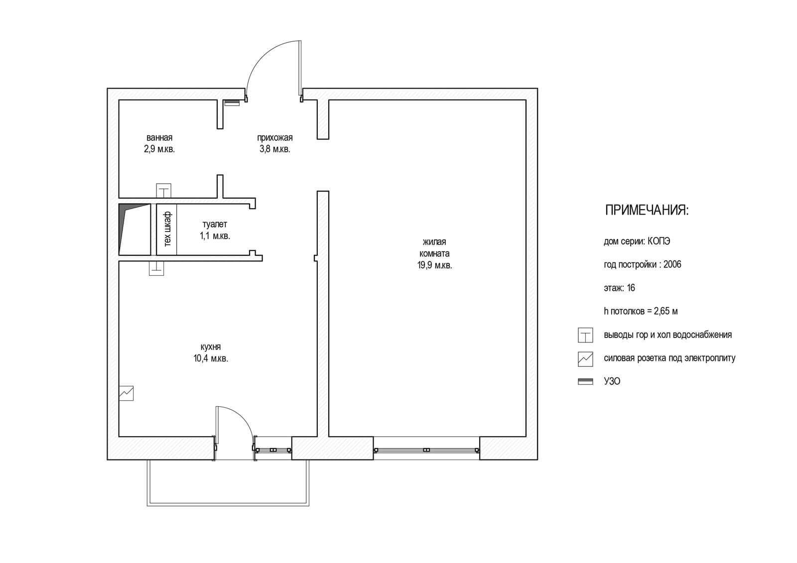
Для грамотного обустройства квартиры необходима подготовка со всех фронтов. Главный из них – дизайн-проект квартиры с полным набором технической документации и визуализации интерьера. Разбираем на конкретных примерах, что входит в дизайн-проект:
- подробный план замеров всех помещений с указанием четких цифр;
- несколько вариантов планировок помещения, согласованных с БТИ;
- план демонтажа перегородных конструкций;
- схема раскладки полового настила;
- развернутые схемы для потолка и стен;
- несколько способов размещения мебели;
- планы розеток, люстр и настенных ламп, выключателей;
- карта установки сантехники и кухонного оборудования;
- схема распределения вентиляции и монтажа кондиционеров;
- визуализация интерьера всех помещений в программе 3D-визуализации.


Также отдельно необходимо прописать все особенности выбранного дизайнерского решения, описать специфику отделочный материалов, необходимый декор и подборку мебели с указанием ее размеров. То есть в дизайн-проекте должен быть отражен буквально каждый сантиметр вашей обновленной квартиры с учетом абсолютно всех ее составляющих. Как выглядят все эти схематические планы с указанными моментами вы можете посмотреть на фото.















Рекомендуемые статьи для тебя:
Меня зовут Виталий и я создатель и редактор этого блога. В обычной жизни я маркетолог, но по вечерам я окунаюсь в мир дизайна и интерьера. Мы с женой создавали этот блог для вдохновения и будем ради если он вдохновит и вас. Вы можете следить за мной в Instagram (ваши подписки будут мотивировать его обновлять). Побольше красивых интерьеров всем нам!

Нам интересно ваше мнение