Дизайн 2-ух комнатной квартиры: 45 кв. м. уюта
- 13.10.2018
- 10279 просмотров
Этот дизайн 2-ух комнатной квартиры (45 м2) кажется куда просторней.
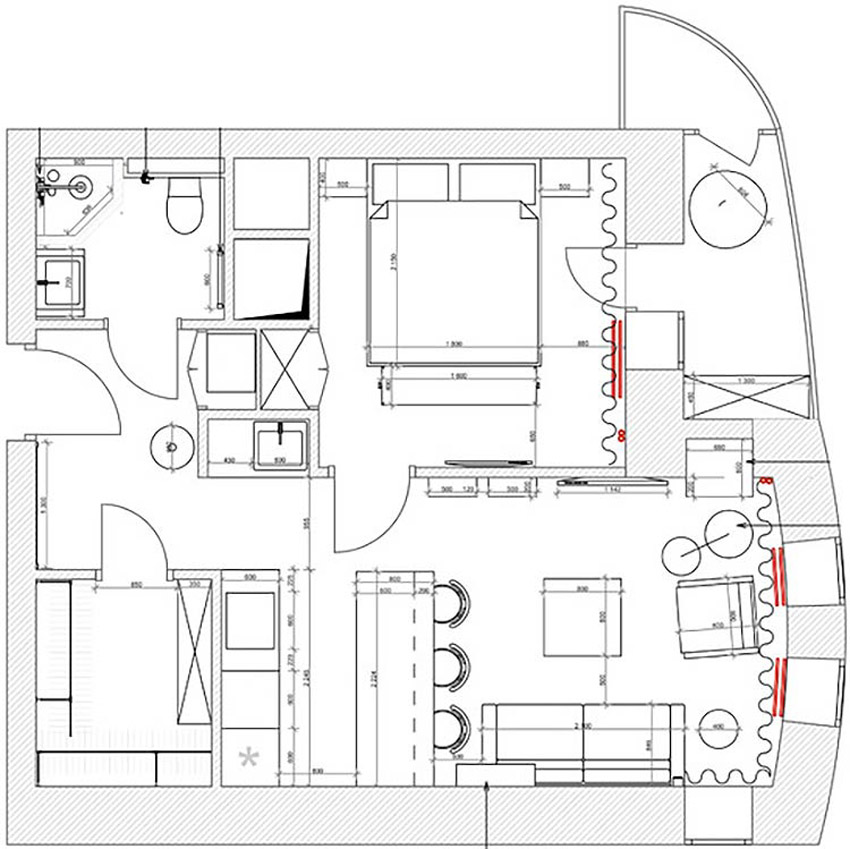
На деле это совсем небольшая квартира, грамотно преобразованная дизайнером Викторией Мухер. Здесь нашлось место даже для отдельной гардеробной, которую так хотела хозяйка Альбина. Рядом с ней за черными дверцами стоит стиральная машина, а напротив – зеркало во всю стену. Все практично и при этом стильно.
В интерьере так много ярких деталей (подушки, шторы, постеры, декоративные элементы), которые прекрасно гармонируют между собой.
Цвета светильников над островом кухни подобраны неслучайно. Они повторяют цветовую схему интерьера: белый, черный и бежевый в разных пропорциях встречаются в отделке, мебели и декоре.
Большая комната разделена на зону кухни и гостиной, между которыми расположен кухонный остров, выполняющий параллельно роль обеденного стола и барной стойки.
Такой кухни вполне достаточно для одиноко проживающей девушки.
Знакомьтесь: на фото владелица всей этой красоты и один из ее домашних любимцев.
Спальня оформлена в комнате поменьше. Ух…это изголовье выглядит великолепно! Кроме кровати, маленьких тумбочек и кушетки здесь больше ничего и нет. Главным ярким акцентом в интерьере стала синяя кушетка.
Приятного просмотра!
Рекомендуемые статьи для тебя:
GD-Home – это маленькое удовольствие, что-то уютное и теплое. Почему мы стараемся для вас? Мы просто верим, что домашний уют способен сделать людей счастливее.



















Нам интересно ваше мнение