Дизайн 3-х комнатной квартиры 70 кв. м
- 23.01.2019
- 7140 просмотров
Эта 3-х комнатная квартира принадлежит семейной паре с полугодовалым сыном Иваном и котом Мао. Разработкой очаровательного дизайна занималась не менее чарующая девушка Анна Колпакова-Санасарян. Ей удалось создать романтичную атмосферу, при этом сохранив функциональность и практичность интерьера.
Самую большую площадь занимает гостиная с панорамным выходом на маленький французский балкон. Бывшие владельцы застеклили его, а нынешние вернули балкону первоначальный вид. Когда за окном греет солнце, это пространство становится местом притяжения. Вероятно, в окружение зелени, оно выглядит очень уютно.
По обе стороны от гостиной расположены две спальни: для родителей и маленького Ивана.
Дизайн трехкомнатной квартиры
Гостиная-столовая
На фото, кстати, хозяйка квартиры Светлана.
Интерьер трехкомнатной квартиры
Журнальный столик
Кухню было решено оставить на прежнем месте. Чтобы увеличить количество дневного света в прихожей, дизайнер решила установить стеклянную перегородку вместо обычной двери.
Интерьер кухни больше напоминает домашнее кафе с барной стойкой для завтраков и перекусов. Для обедов и ужинов предусмотрена столовая зона в гостиной.
Интерьер 3-х комнатной квартиры (70 кв. м)
Спальня практически парит в облаках. Она оформлена в такой же светлой серой гамме. Комната разделена на две части, в меньшей из которой расположена гардеробная.
Наслаждайтесь!
Маленькая столовая в гостиной
Оформление детской для новорожденого
Дизайн 3-комнатной квартиры
Ванная комната в квартире
Плитка «кабанчик»
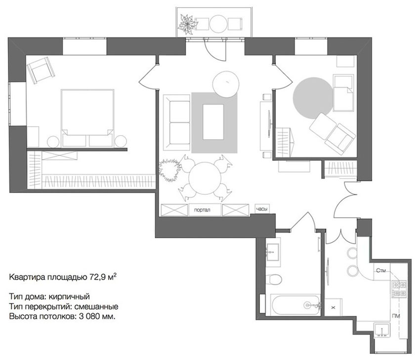
Планировка 3-комнатной квартиры
Рекомендуемые статьи для тебя:
GD-Home – это маленькое удовольствие, что-то уютное и теплое. Почему мы стараемся для вас? Мы просто верим, что домашний уют способен сделать людей счастливее.



















Нам интересно ваше мнение