РОСКОШНЫЙ СОВРЕМЕННЫЙ ДОМ ИЗ ЧЕХИИ
- 29.01.2015
- 5362 просмотров
Этот роскошный дом с пятью спальнями впечатляет не только своими размерами, но и ультрасовременным оснащением. Он был спроектирован компанией Jestico + Whiles, которая сумела создать идеальный дом для своих клиентов. Инженерам и архитекторами компании удалось внедрить новейшие технологии экологического проектирования. Дом расположен недалеко от Праги в Чехии и носит имя Villa Pruhonice. Проект тяжело назвать скромным, учитывая коллекцию автомобилей, для которых построен гараж, напоминающий витрину автосалона.
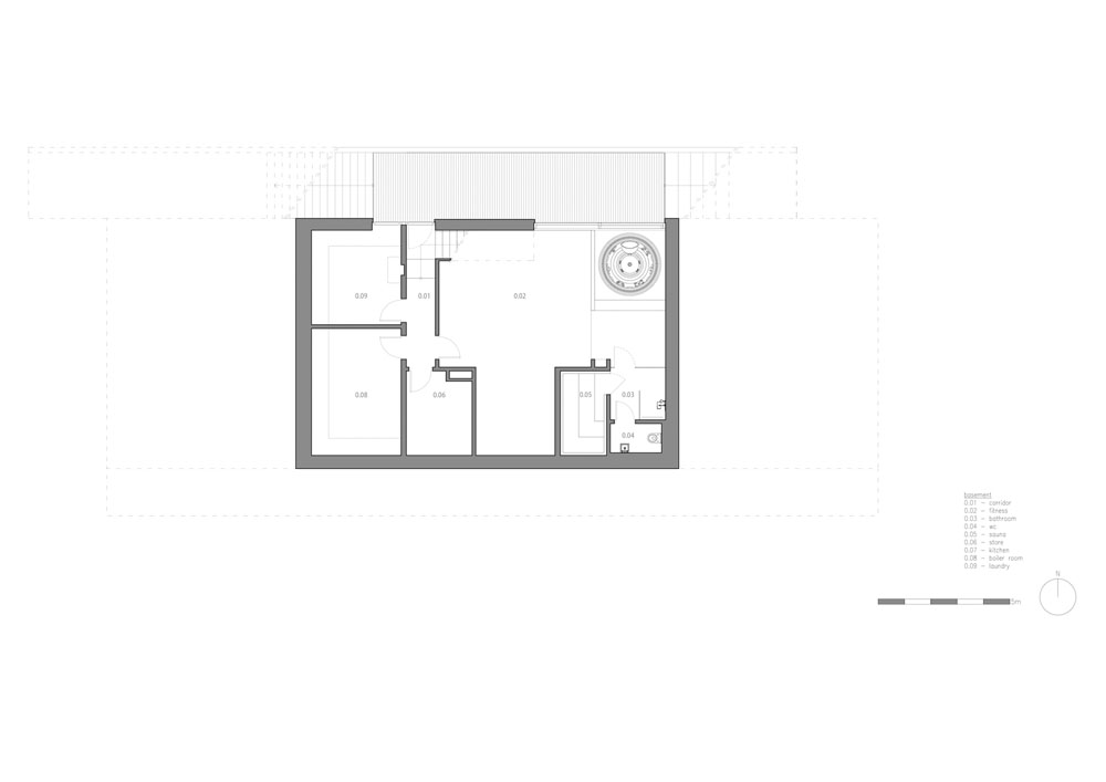
Общая площадь дома составляет 560 кв. м. Внутренний интерьер выполнен в стиле хай-тек и представляет собой сочетание мрамора, кожи и дерева. Помимо этого дом оснащен системой, которая позволяет управлять освещением и безопасностью. Также здесь установлены датчики температуры, которые собирают данные в реальном времени, чтобы обеспечить максимальную энергоэффективность. Говоря об интерьере дома, стоит отметить, что простота оформления скрывает за собой утонченный вкус. Практически весь первый этаж имеет открытую планировку. Здесь есть гостиная, кухня и столовая, а также отделенная спальня, ванная и бильярдная комната. Учитывая всю технологичность этого дома, стоит отметить, что даже в обычной системе кухонной сантехники нашлось, чем удивить. Здесь есть кнопка, нажатие которой обеспечивает владельца газированной водой прямо из под крана. Интересной в этом доме является даже лестница. Она выполнена из дуба и, кажется, просто парит в воздухе. Здесь есть также тренажерный зал и спа-салон.
Рекомендуемые статьи для тебя:
GD-Home – это маленькое удовольствие, что-то уютное и теплое. Почему мы стараемся для вас? Мы просто верим, что домашний уют способен сделать людей счастливее.























Нам интересно ваше мнение