РОСКОШНЫЙ ДОМ НА ПОБЕРЕЖЬЕ
- 24.08.2015
- 3401 просмотров
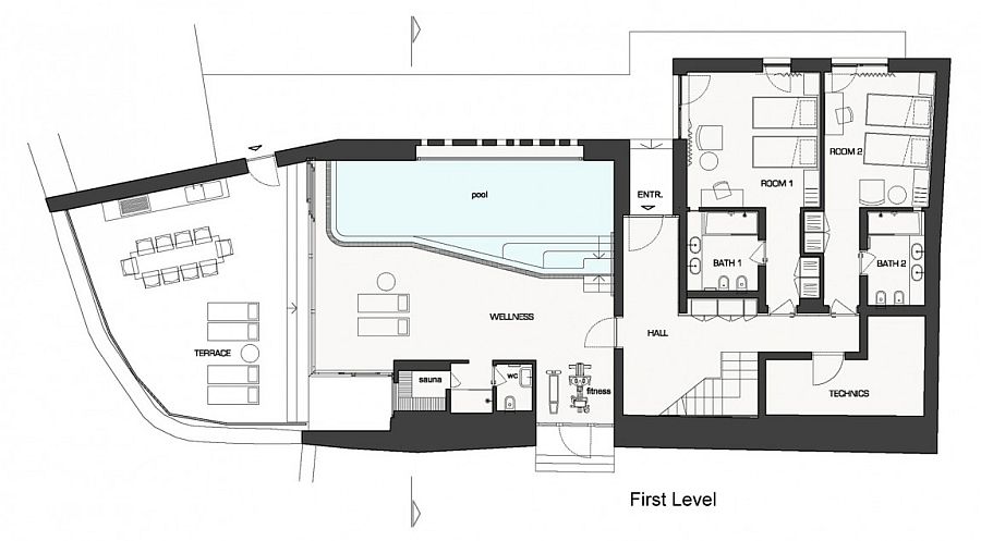
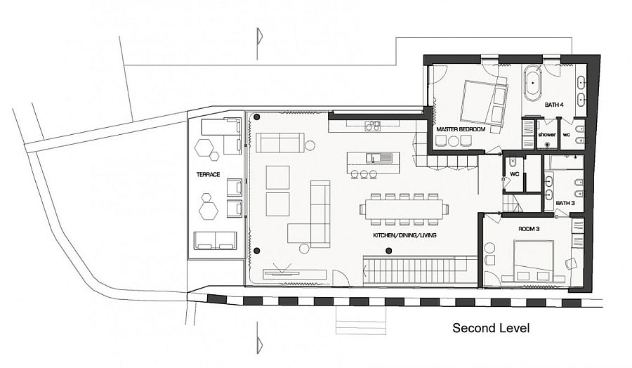
Роскошный дом на побережье объединяет два контрастных мира архитектуры. Его разработкой занималась Studio Metrocubo. Расположенный на побережье Адриатического моря в городе Новиград, Хорватия, современный дом сочетает в себе приморскую атмосферу с историческим шармом, принесенного средневековыми стенами, которые его окружают. Такое удивительное сочетание каменных стен с современными стеклянными поверхностями создает сказочную и роскошную картинку.
Большие стеклянные стены и окна полностью открывают дом к западу и северу, предлагая вид на море и сад. Благодаря панорамным окнам, каменные стены становятся частью внутреннего дизайна. Дом имеет два этажа и террасу на крыше. Также здесь вы найдете бассейн, который кажется соединяется с морем, спа-центр и сауну.
Рекомендуемые статьи для тебя:
GD-Home – это маленькое удовольствие, что-то уютное и теплое. Почему мы стараемся для вас? Мы просто верим, что домашний уют способен сделать людей счастливее.






















Нам интересно ваше мнение