КАМЕННЫЙ ДОМ НА СТАРЫХ РУИНАХ ИЗ ШОТЛАНДИИ
- 08.02.2016
- 383 просмотров

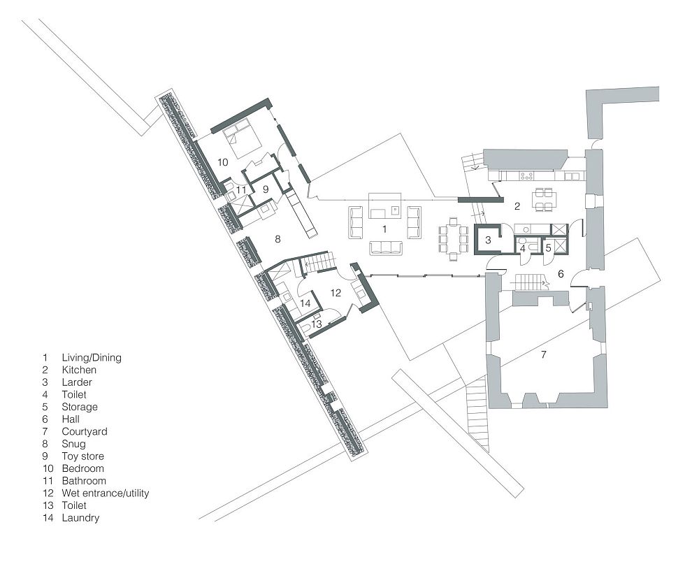
Этот каменный дом был возведен в 1732 году без помощи каких-либо строительных растворов, только камень. Архитектурная студия WT Architecture взялась за его обновление. Они решили по минимуму вмешаться в первозданный вид каменного дома, лишь дополнить его деревянными панелями и стеклом. Даже трещину, идущую вдоль одной из стен, дизайнеры решили оставить без изменений, а эту часть дома использовать как внутренний двор. Такой бережный подход к обновлению позволил сохранить историческое очарование постройки.
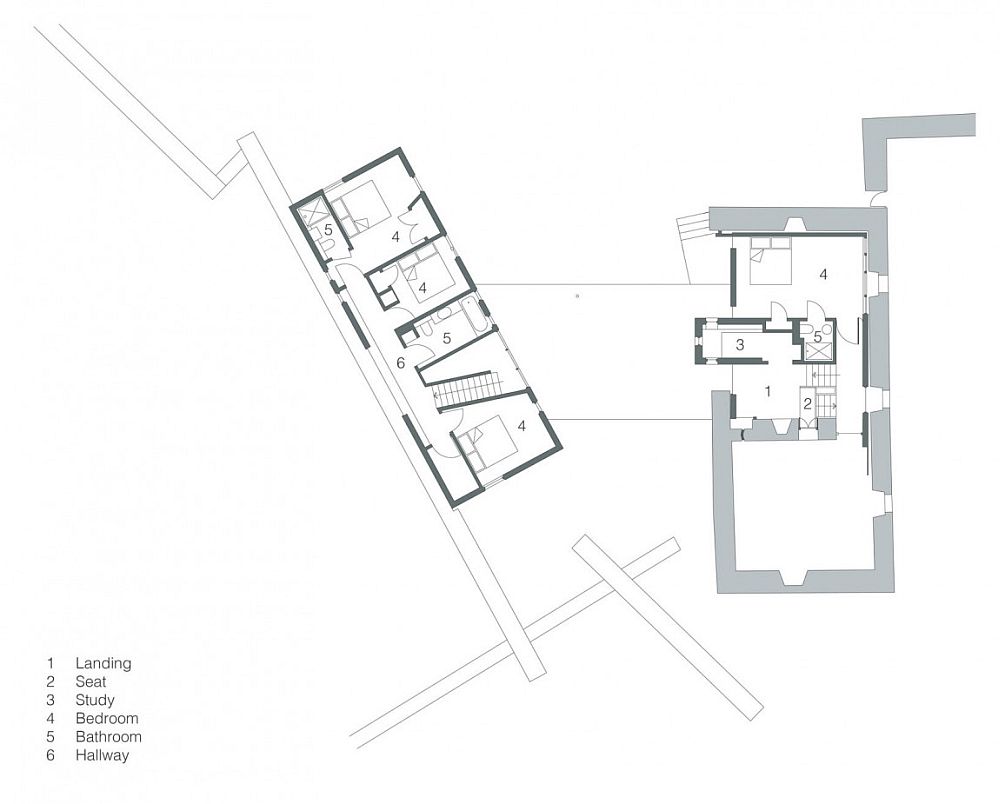
С помощью стекла и дерева, старые руины превратились в жилой современный дом, который демонстрирует блестящее сочетание эпох, стилей и контрастных материалов. Две постройки объединяет застекленная гостиная-столовая, откуда открывается панорамный вид на прибрежную линию. На первом этаже также расположена кухню, комната для игр, спальня и несколько уборных. Этажом выше обустроены четыре спальные комнаты, библиотека, рабочий кабинет и несколько ванных.
Почти 300 лет назад это место посетил шотландский писатель Джеймс Босуэлл, где провел немало времени. Эти руины стали для него любимым местом на острове. Не удивительно, ведь это спокойное место способно унести от беспокойной мирской жизни. Идеальная алхимия!













Рекомендуемые статьи для тебя:
GD-Home – это маленькое удовольствие, что-то уютное и теплое. Почему мы стараемся для вас? Мы просто верим, что домашний уют способен сделать людей счастливее.

Нам интересно ваше мнение