ДОМ ВИКТОРИАНСКОЙ ЭПОХИ
- 01.03.2015
- 5617 просмотров
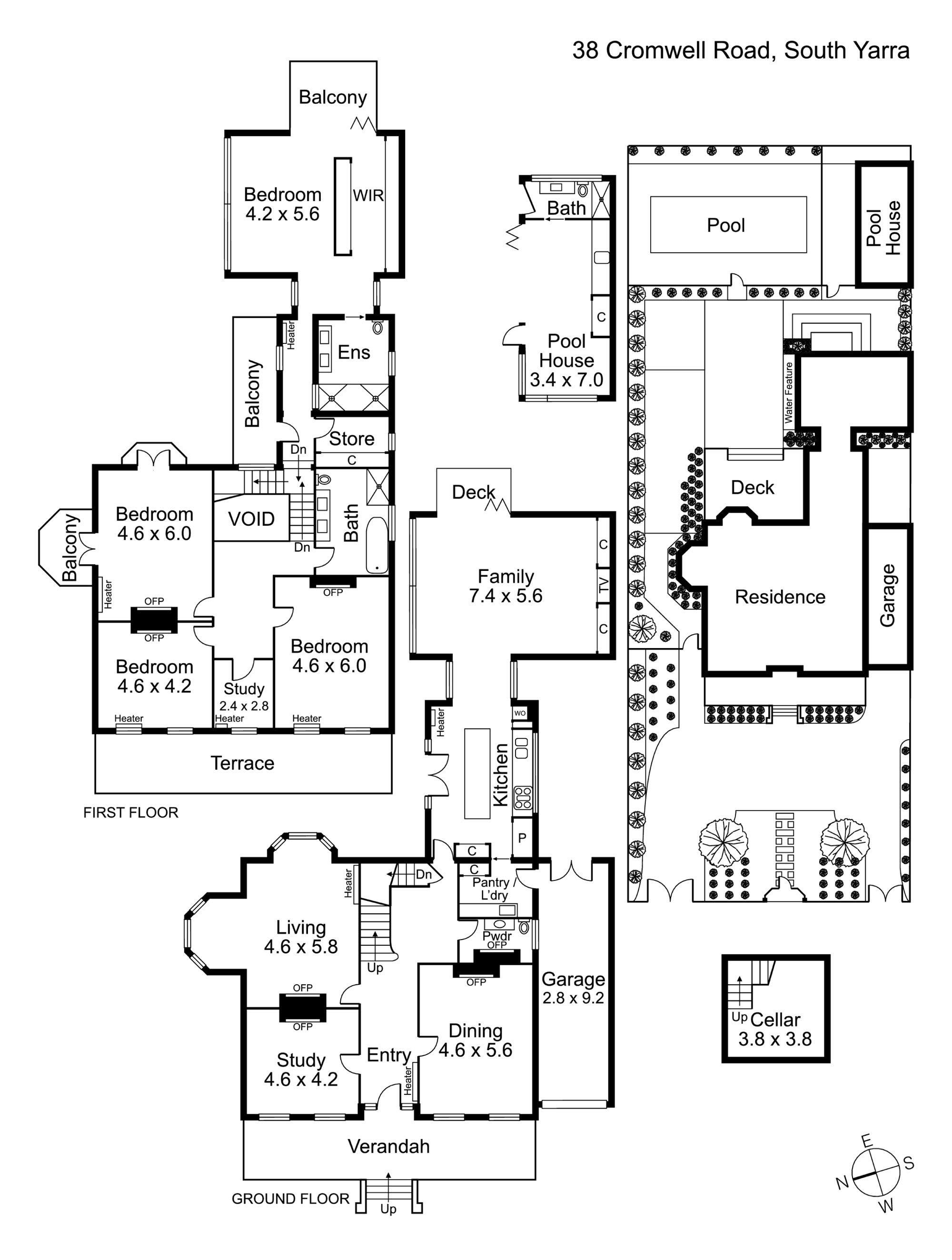
Роскошный дом викторианской эпохи был отреставрирован несколько лет назад и теперь выставлен на продажу. Его приблизительная цена составляет 2,5 млн долларов. Помимо основного здания на площади в 1 265 м² есть современная пристройка и бассейн. В доме на первом этаже расположена гостиная, кабинет, кухня и столовая, а также вторая гостиная с выходом в сад. На втором этаже вы найдете четыре спальни, каждая из которых имеет свой камин и выход на балкон. В отличие от фасада, интерьер выполнен в минималистичном стиле и лишь некоторые детали, например, роскошная деревянная лестница, напоминают о его былом прошлом. Особого шарма фасаду дома добавляют металлические элементы балкона. Расположен он в Австралии и до сих пор не имеет владельцев. Так что, если у вас есть пара тройка миллионов долларов, вперед! 🙂
Рекомендуемые статьи для тебя:
GD-Home – это маленькое удовольствие, что-то уютное и теплое. Почему мы стараемся для вас? Мы просто верим, что домашний уют способен сделать людей счастливее.













Нам интересно ваше мнение