Дизайн проект 1-комнатной квартиры: 2 проекта
- 23.07.2020
- 2545 просмотров

Дизайн-проект – обязательная составляющая любого удачного ремонта. Часто его заказывают у дизайнеров или покупают уже готовые, но мы уверены, что разработать дизайн-проекты однокомнатных квартир под силу и самому.
Вот как это выглядит поэтапно:
- Замеры помещений с точным определением высоты стен и оконных проемов.
- Прорисовка обмерочного плана на основе полученных данных: то есть, просто рисуете схему своей квартиры, где конкретно обозначаете длину и высоту для каждой поверхности.
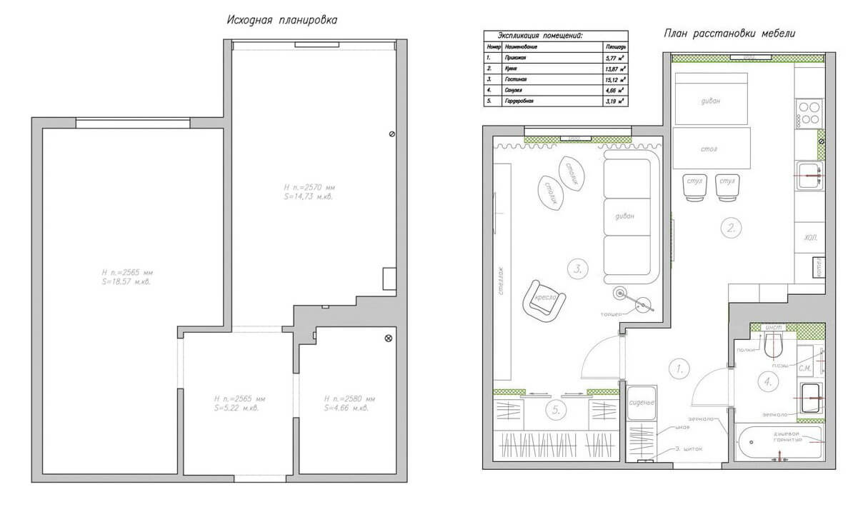
- Создание отдельного плана для дверных и оконных проемов, схемы переноски, демонтажа или возведения стен (перегородок). Это обязательно согласовываем с БТИ.
- Расстановка мебели на итоговой схеме квартиры.
- Прорисовка схемы для электрической линии с указанием розеток, выключателей и осветительных приборов.
- Описание планируемых материалов для отделки стен и потолка, указание их месторасположения (если, допустим, какие-то комбинируются).
- Составление сметы на итоговую работу, включая отделочные материалы, мебель и осветительные приборы, декор.
Также отдельно вам необходимо прописать все особенности выбранного стиля для дизайна квартиры. Если есть желание и навыки работы с онлайн-программами для 3D-визуализации, можете создать картину будущей обновленной квартиры.


















Одной из популярнейших тенденций в современном дизайне интерьера является перепланировка помещения. Снос или смещение стены, совмещение кухни и гостиной позволяют создавать самые смелые и интересные дизайн-проекты однокомнатных квартир. Стандартная «однушка» не отличается большой площадью, поэтому места для оборудования перегородок между зонами зачастую попросту не хватает.
В этом случае компоновка функциональных зон осуществляется за счет особой расстановки мебели или разных видов освещения. Если в квартире проживает один человек, либо молодая пара, то хорошим вариантом является отделение спального места с помощью ширмы и создание единого пространства в формате студии.


Для полноценной семьи важно оборудование отдельного места для ребенка, где он мог бы спать, играть и заниматься. Так, можно из однокомнатной сделать условно двухкомнатную квартиру: кухонную зону переместить в прихожую (кладовую), а на ее месте обустроить отдельную комнату.
В последнее время очень модными стали квартиры с высокими потолками. Верхняя часть подобных помещений используется в качестве «второго этажа», на котором обустраивается спальня, рабочий кабинет или зона отдыха.
















Освещение в интерьере
Видео по теме: Дизайн-проект однокомнатной квартиры
Рекомендуемые статьи для тебя:
Меня зовут Виталий и я создатель и редактор этого блога. В обычной жизни я маркетолог, но по вечерам я окунаюсь в мир дизайна и интерьера. Мы с женой создавали этот блог для вдохновения и будем ради если он вдохновит и вас. Вы можете следить за мной в Instagram (ваши подписки будут мотивировать его обновлять). Побольше красивых интерьеров всем нам!

Нам интересно ваше мнение