Дизайн дома снаружи + интерьер и проект
- 23.10.2018
- 16301 просмотров

Как и внутренний интерьер, дизайн дома снаружи оформлен в традиционном стиле кантри с нотками прованса. Если вам по душе такой сочный и в тоже время уютный дизайн, используйте комбинацию из этих двух стилей.
На оформление дома был потрачен небольшой бюджет, но при этом создана комфортная обстановка для семейной жизни. Дизайном занималась Анна Жемерева из студии ORT-interiors. Первый этаж имеет открытую планировку с объединенной кухней, столовой и гостиной. Благодаря этому свободного пространства получилось довольно много. Рядом обустроена гостевая спальня, техзона и ванная комната. Этажом выше расположились спальни, каждая из которых имеет свой акцентный цвет. Большая часть мебели, в том числе и кухонный гарнитур, из ИКЕА.
Приятного просмотра!

Наружный дизайн дома, оформленный в пастельно зеленом цвете, выглядит очаровательно.
Как и во многих современных проектах, гараж является частью дома, за счет чего визуально сам дом кажется больше. Плюс на участке нет отдельных построек, которые, как правило, нарушают гармонию в ландшафтном дизайне.

Просторная гостиная в доме из бруса является любимым местом в доме.

Мебель с синей обивкой хорошо сочетается со светлым деревом. Уюта добавляют бордовые детали — диванные подушки и шторы.

Столовая зона в отличие от гостиной и кухни выглядит менее заметно. Дизайнер нарочно не выделяла эту часть, чтобы пространство первого этажа смотрелось гармонично. Синего цвета и так достаточно.

Стеклянные фасады с подсветкой смотрятся как-то особо по-праздничному.

Практический совет: место у плиты на кухне с деревянными стенами должно быть защищено. Как вариант, можно использовать огнестойкое стекло.


Практический совет: если вы решили расположить раковину у окна, предусмотрите возможность комфортно открывать створки. Раздвижное окно будет будет очень кстати.

Лестница на второй этаж.

Белый цвет хорошо сочетается с деревом. Именно поэтому такая комбинация используется во многих интерьерных стилях.


Спальня в деревенском стиле кантри.

Детали добавляют очарование интерьеру.




Под библиотеку отведена отдельная комната.

Бордовая ванная кажется очень роскошной!








Небольшой санузел на первом уровне.

Белые ванные комнаты — это всегда беспроигрышный вариант.

Полочка для разных мелочей образовалась за счет сливной системы, которую было необходимо спрятать. Как видите, зашивать стену под самый потолок совсем необязательно.

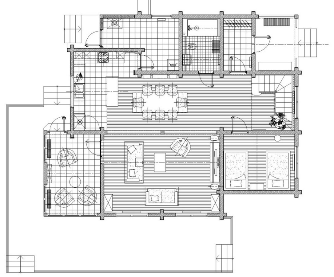
План первого этажа, который включает застекленную террасу.

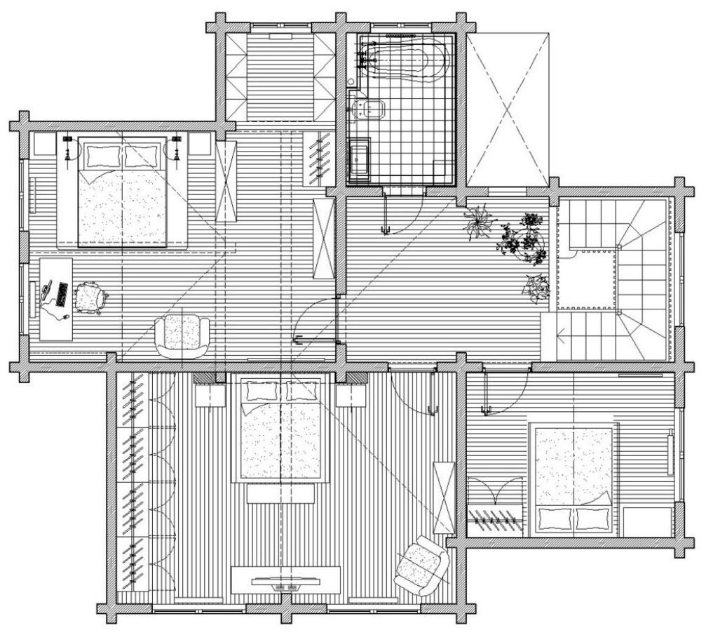
План второго этажа.
Рекомендуемые статьи для тебя:
GD-Home – это маленькое удовольствие, что-то уютное и теплое. Почему мы стараемся для вас? Мы просто верим, что домашний уют способен сделать людей счастливее.

Нам интересно ваше мнение