Дизайн дома из бревна: красивый проект
- 28.07.2019
- 4771 просмотров

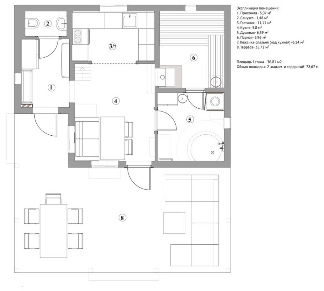
Этот дом из бревна имеет площадь всего 37 кв. м, вместе с верандой — 79 кв. м, но скромная площадь не мешает ему казаться таким уютным.
Он используется как дача на выходные для семьи дизайнера Натальи Сорокиной, которая и занималась его оформлением. Изначально семья планировала жить здесь, когда будет строиться основной дом на участке, но по итогу уже вместе с двумя дочерьми пара приезжает сюда только на отдых.

Кухня в стиле кантри

Строим дом из бревна: техника безопасности
Деревянные дома отличаются несколько специфичными требованиями техники безопасности. В первую очередь это касается коммуникаций: для водоснабжения и канализации необходимо использовать трубы из пластика, который препятствует образованию конденсата. Это защитит деревянные поверхности от влияния повышенной влажности.
Если вы планируете проложить скрытую электрическую проводку, то монтировать ее следует в особых металлических рукавах или трубах. Если проводка будет открытой, то специальные пластиковые короба, подобранные под цвет и общую картину дизайна, защитят от проблем с электричеством и дополнят внешний вид комнаты.

Дизайн дома из бревна

Дизайн интерьера деревянного дома

Внутренний интерьер: какой стиль выбрать?
Возникнув как архитектурный стиль небольших горных домиков, которые строили пастухи и местные жители альпийских деревень, шале прижилось и в современном обществе. То же самое можно сказать и о стиле кантри.
Обилие естественного света и дерева являются основой деревянных домиков.
Камин в гостиной, которая может быть совмещена с кухней и столовой, дарит жилищу настоящий деревенский уют. Установить его можно как внутри, так и снаружи дома – во втором случае вы получите место для дружеских посиделок на свежем воздухе.
Украсить камин можно при помощи камня, а саму поверхность выполнить из металла, гранита или мрамора. В качестве стилизации менее затратным вариантом будет керамическая плитка, внешне напоминающая камень. Предусмотрите наличие ниши или подставки под дрова. Даже сам вид аккуратно сложенных дров рядом с камином сделает картинку еще более теплой.
Для напольного покрытия лучше использовать широкую доску, отполированную и покрытую лаком или краской.
Для стен не стоит использовать гипсокартон и любое другое покрытие, поскольку дерево как строительный материал вполне самодостаточно и не требует особых усилий для оформления.
Потолок можно покрыть вагонкой, либо оставить в нетронутом виде.

Внутренний дизайн дома

Дизайн деревянного дома

Интерьер дачных домиков

Дизайн дачи

Красивая кухня

Фартук на кухне


Баня в доме

Кстати, почти 14 кв. м в доме занимает баня и душевая.

Фасад дома из бревна

План одноэтажного дома-бани

Песочница во дворе

Веранда у дома

Оформление веранды

Хозяйка и дизайнер в одном лице


Деревенский дом


Ландшафтный дизайн дачи

Дизайн огорода
Рекомендуемые статьи для тебя:
GD-Home – это маленькое удовольствие, что-то уютное и теплое. Почему мы стараемся для вас? Мы просто верим, что домашний уют способен сделать людей счастливее.

Нам интересно ваше мнение