ДЕРЕВЯННЫЙ ДОМ В СТИЛЕ МИНИМАЛИЗМ
- 30.04.2015
- 8919 просмотров
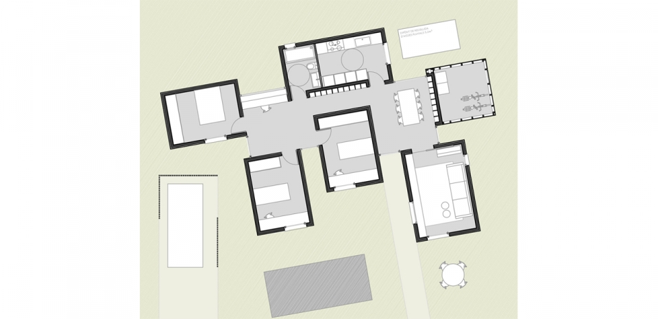
Проектом этого простого дома занимались архитекторы компании Alventosa Morell Arquitectes. Он состоит из шести модульных блоков, объединенных между собой. Общая площадь равна 112 кв. м. Владельцами его является семья с двумя неугомонными детьми, которые обратились к компании с просьбой как можно быстрее возвести дом, при этом он должен быть выполнен из натуральных материалов, быть энергоэффективным и вписываться в окружающую среду.
Архитекторам удалось воплотить мечту молодой семьи с помощью дерева. Этот дом был возведен на окраине Барселоны за 4 месяца. Внутренний интерьер впечатляет простотой, как это ни странно звучит, даря комфорт и уют своим владельцам. Он точно понравится поклонникам минимализма!
Рекомендуемые статьи для тебя:
GD-Home – это маленькое удовольствие, что-то уютное и теплое. Почему мы стараемся для вас? Мы просто верим, что домашний уют способен сделать людей счастливее.










